Asking Price $779,999
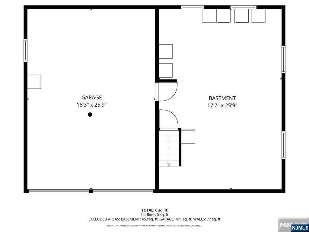
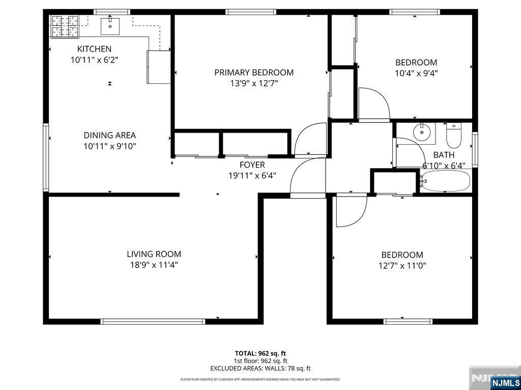
Look no further! Two-family property offering income and value-add potential, situated on a dead-end street in a desirable town with convenient access to public transportation and commuter routes. Each unit features three bedrooms, one full bath, living room, dining area, and kitchen, with approximately 962 sq ft per unit per floor plan. Property includes a two-car garage, a fenced-in backyard, and a basement providing additional utility space with potential for future improvement. Opportunity to renovate and build equity. Property sold strictly as-is.
| Year Built: | 1970 |
| Garage: | Attached |
| Lot Desc: | Regular |
| Heating/Cooling Type: | Baseboard,Gas |
| Siding/Exterior: | Brick |
| Fireplaces: |
Listing Broker:
Coldwell Banker, Ridgewood
201-445-9400


The data relating to real estate for sale on this web site comes in part from the Internet Data Exchange Program of the NJMLS. Real Estate listings held by brokerage firms other than Kurgan-Bergen Realty are marked with the Internet Data Exchange logo and information about them includes the name of the listing brokers. Last date updated: 01/25/26 Source: New Jersey Multiple Listing, Inc. Some real estate firms do not participate in Internet Data Exchange © and their listings do not appear on this website. Some properties listed with participating firms do not appear on this website at the request of the seller. All information deemed reliable but not guaranteed. © 2026 New Jersey Multiple Listing Service Inc. All rights reserved.
Information herein is deemed reliable but not guaranteed.