Asking Price $974,900
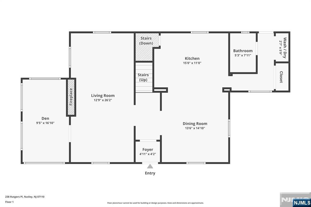
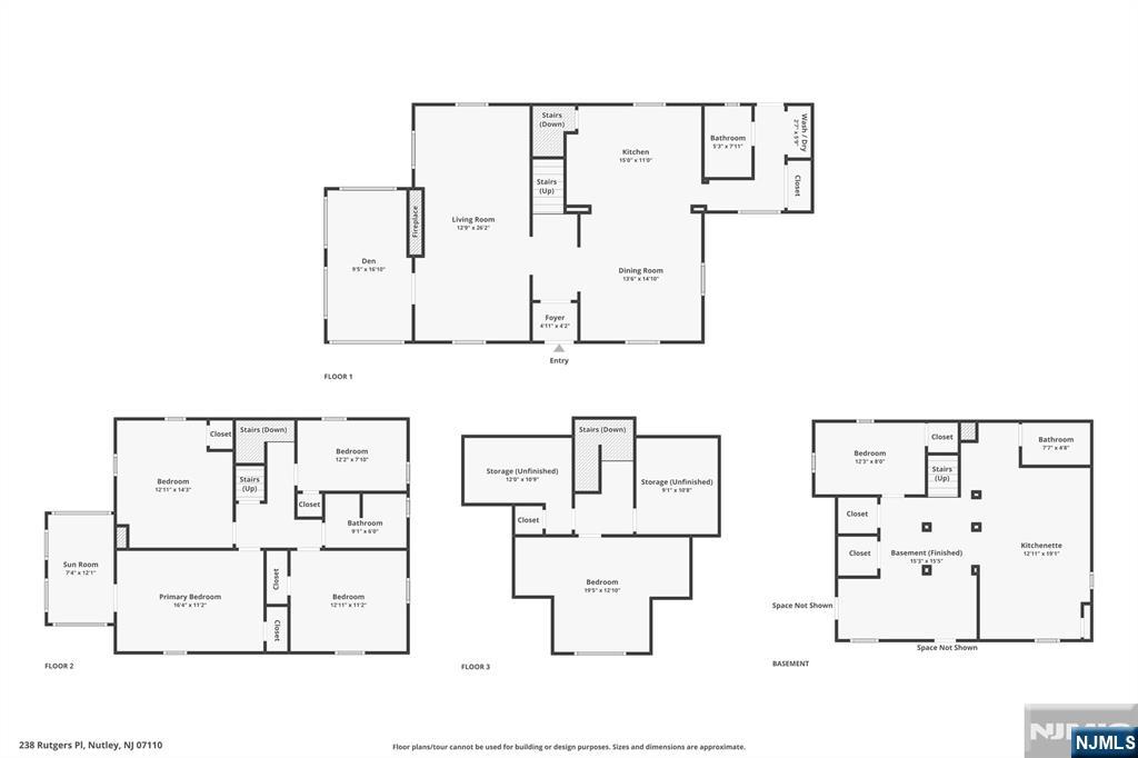
Don’t miss this rare opportunity to own a beautifully maintained and thoughtfully updated 5BR, 2.5 BTH center hall Colonial with historical charm & modern updates, on an extraordinary 103 x 147 park-like lot in the best location in Nutley! This huge property offers privacy and space that’s increasingly hard to find. A welcoming foyer with original parquet floors leads to rich hardwoods throughout. The renovated open-concept kitchen and dining area features high-end appliances, a center island, and picturesque backyard views, perfect for everyday living and entertaining. The first floor also includes a renovated full bath, laundry, and a gracious living room with a wood-burning fireplace, original Chestnut trim, coffered ceilings, built-ins, and wainscoting, timeless details rarely found in newer construction. A sun-drenched four-season sunroom adds flexible space for a den or office. Upstairs offers four spacious bedrooms, an updated full bath, and a second sunroom off the primary, ideal as a private retreat. The third level includes a fifth bedroom and additional storage. The finished basement expands the living space with a summer kitchen suited for multi-generational living, a powder room with room to expand, guest space, and rec area. Ductless AC on the first floor adds modern comfort. Complete with a 2-car garage, driveway parking for 8+cars, and a large shed, this home sits on a quiet, tree-lined street near all of Nutley's Parks, with easy access to NYC t
| Year Built: | 1900 |
| Garage: | Detached |
| Lot Desc: | Irregular |
| Heating/Cooling Type: | Baseboard,Gas,Radiators |
| Siding/Exterior: | Mason/stucco |
| Fireplaces: | 1 Fireplace |
| Virtual Tour: | https://www.zillow.com/view-imx/3e12da88-b6b0-4e0d-a1c1-4000b435f80f?wl=true&setAttribution=mls&init |
Listing Broker:
Kurgan-Bergen Realtors
201-939-6200


The data relating to real estate for sale on this web site comes in part from the Internet Data Exchange Program of the NJMLS. Real Estate listings held by brokerage firms other than Kurgan-Bergen Realty are marked with the Internet Data Exchange logo and information about them includes the name of the listing brokers. Last date updated: 02/13/26 Source: New Jersey Multiple Listing, Inc. Some real estate firms do not participate in Internet Data Exchange © and their listings do not appear on this website. Some properties listed with participating firms do not appear on this website at the request of the seller. All information deemed reliable but not guaranteed. © 2026 New Jersey Multiple Listing Service Inc. All rights reserved.
Information herein is deemed reliable but not guaranteed.